本资料为108套别墅新农村自建房建筑施工图纸。
包括农村二层住宅施工图、经典住宅户型、中西独院别墅、农村住宅设计方案、中式高档仿古别墅全套施工图、带地下室欧式别墅图纸、现代风格住宅设计等,共108套图纸,部分含效果图。以下是部分资料展示:

农村二层住宅施工图-立面图

农村二层住宅施工图-平面图

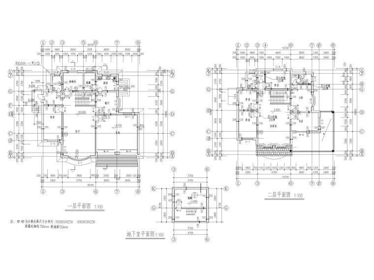
带地下室欧式别墅1-立面图

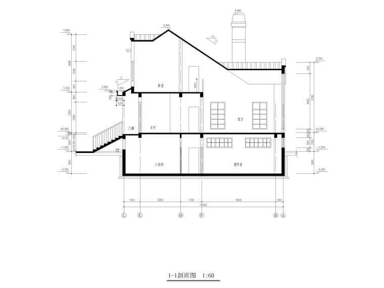
带地下室欧式别墅1-剖面图

L型别墅立面

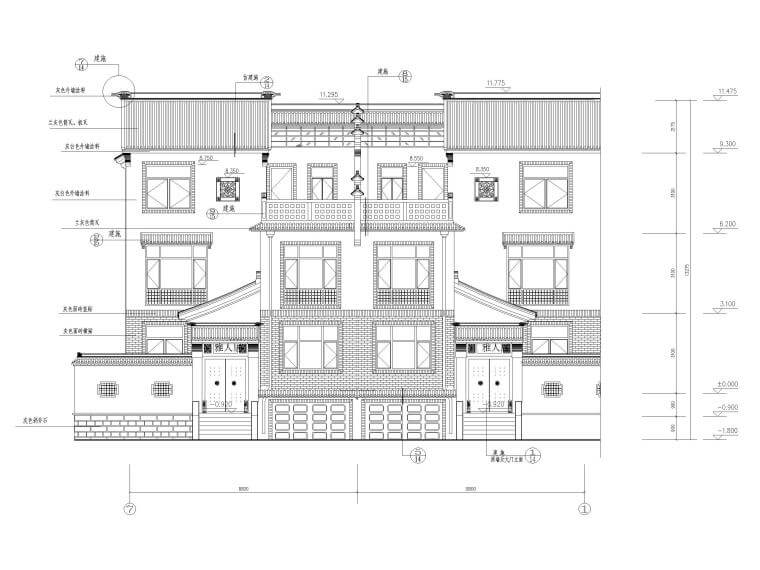
某中式高档仿古别墅全套施工图-立面图

某中式高档仿古别墅全套施工图-剖面图

本文为专题文章,来自:工程大叔,内容观点不代表本站立场,如若转载请联系专题作者,本文链接:https://fgeyun.com/2020/11/5454.html
