似曾相识燕归来 | 现代中式和融创海越府
引子 当下国内的住宅立面风格设计存在着两种倾向。一是类型化特征,凡古今中外的各种既有建筑风格均在其列,如西方古典主义风格,传统中式风格,装饰艺术风格,英式法式东南亚式等地域风格,这些风格讲求原汁原味,无论是建造工艺还是材料选用上均有程式化的一面。另一种是现代派建筑风格。也有些建筑风格既有类型化的风格特征同时又是时尚而现代的,现代中式风格即使如此,值得深入探讨。
本土情怀
中房建筑的设计团队在现代中式建筑风格的设计探索是一个漫长而有趣的历程。作为本土建筑师,出于对本土文化的热爱,总想创作出符合地域特色并赋予传统文化精神的设计作品。而现实很骨感,房产市场的高速发展并未为我们带来很多机会。尤其是住宅设计更像是生产产品,而产品大都是根据市场需求决定的。
建筑师在工作之余,也会寻求机会参与一些非地产项目的设计实践。十余年前,中房建筑在苏州平江路由老式民居改建的筑园会所,就是一次有益的尝试。从老建筑测绘、改建到理水造园、文化经营,并组织大量人力去调研苏州园林和文保建筑,出了一本关于文化建筑指引的小书。这次玩得过瘾,也使我们对本土文化有了更深刻的理解,同时也认识到现代派建筑的设计手法在中式风格建筑创作上的可能性。
国际视野
如何创新?当我们遇见同样有情怀和传统文化认同感的地产开发商时,这是个很现实的问题。上海“九间堂”是中房建筑参与的较出名的一个项目。
开发商希望在上海营建一处代表中国文化、同时又具国际化特征的精品社区,并邀请了国内外知名建筑师如矶琦新、严迅奇等大师事务所联合设计。中房主持总体规划及其中一个别墅组团的建筑设计。
规划依传统江南水乡格局着手,大宅设计也按传统居住建筑形制,讲求内院外园多重空间的表达。在建筑风格的设计上,对传统建筑风格的敬畏之心而由传统向意境建筑突破的表达方式得到一致认同,最终呈现给世人的非传统建筑的集萃,而是一栋栋赋予中式韵味的现代派建筑。
设计过程是艰苦的,也是一种设计心路的历练,尤其在和建筑大师的合作学习,使我们认识到应以更宽广的视野来看待传统建筑风格的现代表达。

多元实践
而后的许多年,中房建筑的设计团队承接了多种类型现代中式风格的地产项目。润园是现代中式风格项目的又一次尝试,由于地处江南水乡新塍古镇,所以在规划及建筑色调的处理上,会更契合于水乡风貌。建筑更加现代,甚至取消了坡屋顶,而更注重建筑内向的空间感。
望园是福州三坊七巷内的一处旧改项目。整个项目基本为重建,外观完全保持三坊七巷的原有风貌,街巷尺度、建筑空间构成和屋顶第五立面与原有城市肌理融为一体,衣裳是传统的而里子是现代的。
住宅终究还是产品,近年的地产市场逐步细分,中式风格的主流产品也呈多级分化的趋势。如以“桃花源系”为代表的江南传统中式别墅和以“府系”为代表的北方官式宅院,做工精细,原汁原味,是传统建筑工艺的传承,有很高的市场接受度。而有需求的项目却乏人问津,设计机会也越来越少了,直到我们承接了海越府中式合院这个项目。
融创平湖海越府
平湖南濒杭州湾,任凭钱塘江起落,地势平坦。中有东湖,任水波不兴,静如明镜,是为平湖。平湖是典型的江南水乡,是“弘一法师”李叔同的故乡。海越府项目分为高层住宅和低层别墅两部分,由于整个项目容积率较高,别墅用地非常紧张,与纯低密产品很不相同。

平湖别墅市场的产品风格似乎受周边地区尤其是上海的影响,呈多元化海派风貌,如西方古典式、新亚洲风,各种风格都有,唯独没有中式产品,这与城市性格很不匹配。
海越府项目开发商是融创,开发了桃花源、宜和园等传统中式系产品,有很强的品牌力。而这次在平湖,融创选择了现代中式风格的尝试。中式风格的回归也是传统文化的回归,经过市场调研,平湖人更希望在自己的土地上能有真正适合平湖的居住产品,这也使我们备受鼓舞。
理水制园
别墅用地位于项目的东南隅,用地规则,东侧为路,南侧有一池。池虽小,但很雅致。去淤引水,驳岸稍加整饬,镶花植木,再于池上架一飞虹,南园即成。
南园是别墅组团的人行入口,一汪清水,绿树葱茏,有沧浪亭的意趣。组团东侧是车行口。利用沿路绿带造景作为前场,制双重门楼,前门高敞,内门以一月洞门作为过渡。

整个组团规模不大,密度又高,所以用地尽可能留给别墅私院,仅在中部留白造园,作为可游可赏之所。曲桥亭台、听枫赏鱼、抚琴读书之处,是为中园。最后是宅园,园有多重,小而精,其乐无穷,如苏州残粒园虽一石一树即成。
组团界面
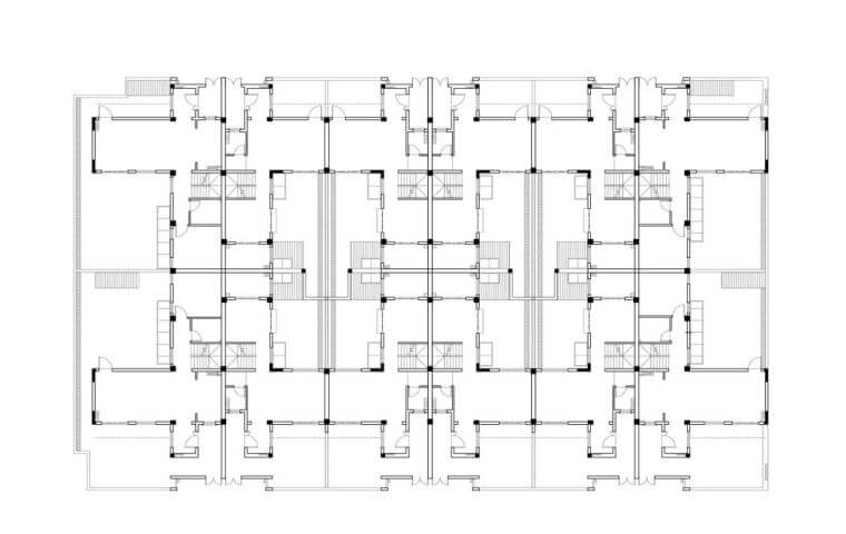
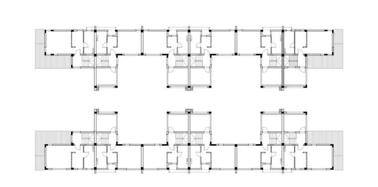
江南水乡中式宅院都是以群落呈现的,所以建筑的整体感很重要。而通常的合院或联排别墅多行列式布局,削弱了建筑群落的连续感,尤其是山墙面更甚。从城市界面而言,组团群落的边界处理和天际线关系也非常重要。
海越府在城市界面的设计处理上运用了三种手法。其一,建筑排布方式采取南北对称拼接,加大了建筑山墙的厚度从而增强了组团界面的连续性。其二,由于建筑多为三层,设计把院墙作为建筑的主要构成元素,优化建筑的尺度关系。其三,通过不同单元形式的组合、山墙形体的跌落处理以及窗形和洞口的变化创造更加丰富的建筑形象。


多重合院
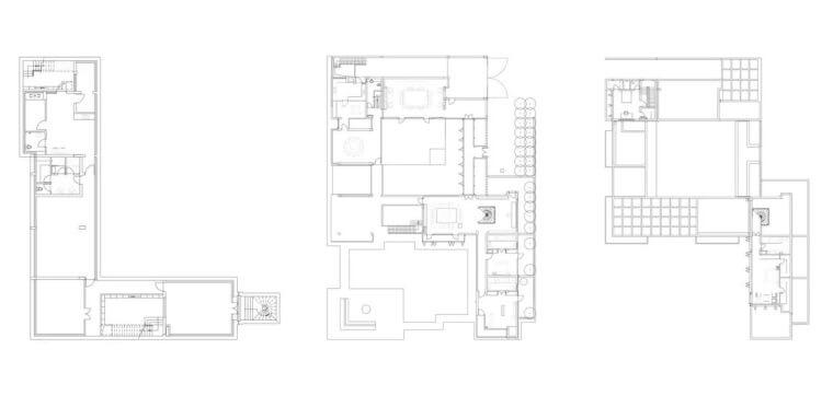
江南传统民居空间的精髓在于院落。海越府的主要别墅产品占地8×16.5米,底层有四个院子。先是入户外玄关小院,进院门后可见湖石小景,然后转折入户。

入户临窗可见前院,前院正对厅堂,与之相对的是后院,后院同时又与餐厅相连。厨房外另设杂院一处可放置设备。除此之外,边套户型根据规划用地不同又增加了边院,把前后院联为一体。二三层退露台并围合成院,从而形成多重立体的院落空间。
△一层平面
△二层平面
△三层平面
中式意境
中式建筑风格一度表现出程式化的一面,一种是前述所泛指的传统中式风格,一砖一瓦一亭一台无不遵循古制,是谓经典的再造。另一种似吴冠中画作,自由朴实,传统江南民居风貌。前者过于隆重,需要更大的占地和花园面积与之匹配,后者则较乡土化,不适合产品复制。
立面风格如何体现中式意境的现代表达,海越府的设计从三个方面着手。其一是着色。粉墙黛瓦为底,配以绿树明花。其二是山墙。江南民居的封火墙很有特色,海越府的山墙富于变化,高低错落,平坡结合,弧形脊线地运用是其主要特色。

其三是留白。立面处理上尽可能保持白墙的完整性和较大的面积,对墙上开洞的尺寸、形状和位置精细推敲,使项目的整体风貌统一而灵动。三种手法的运用展现出中式建筑的大致印象和韵味,而建筑形体和构件尺度的推敲及建筑细部的精细控制则决定了产品的品质。
建筑细部
中式传统民居建筑的做法如砖瓦木灰作及园林都有定式可查,海越府既然非仿古建筑,采用现代工艺建造并以意向中式的风貌呈现,故而舍弃了传统细部工艺的形式和做法。
除大块面的白墙和瓦屋面外,所有立面上的线条勾勒均用金属型材收边。檐口、门窗套、挑檐、各种包边压顶、门楼细部、围墙镂空格栅等,都是用金属材料加工完成,使建筑更加现代精致。
结语
海越府是中房建筑在现代中式风格创作上的有益尝试。感谢业主的支持和信任,让建筑师能实现自己的理想并付诸实践,也让平湖的百姓能认识到真正属于自己的文化和传承。

△项目模型

△立面
项目概况项目地址:浙江省嘉兴市平湖经开区
建设单位:嘉兴融创新地置业有限公司
建筑面积:196413平方米
建筑设计:上海中房建筑设计有限公司
设计团队:龚革非、徐世敏、吕海贝、赵婉月、吴廷坤
甲方设计团队:融创东南区域环沪公司设计研发部
景观设计:浙江绿城环境工程咨询管理有限公司
建筑摄影:吴志盛
本文为专题文章,来自:工程大叔,内容观点不代表本站立场,如若转载请联系专题作者,本文链接:https://fgeyun.com/2020/09/4359.html
