
金地自在春晓
Gemdale In House
中国, 苏州
Suzhou,China
我相信自己
生来如同璀璨的夏日之花
不凋不败,妖冶如火
承受心跳的负荷和呼吸的累赘
乐此不疲
缘起
“ Origin”
_
理性主义盛行下,奢华的生活方式日渐式微。人们开始追求与自然的和谐共生,低碳持续的生活。面向未来的生活场景设计,力求建筑精致,空间宜人,环境优美。
本案是基于当下趋势通过可自由拆建的的建筑实现对未来生活方式的探索。

场所
“ Place”
_

项目选址在苏州浒墅关地区京杭运河旁的一片平坦的草地上。东侧建筑低矮,是民国建筑改造后的蚕里文创园。西侧直面大运河,视野开阔。
南北向均为草地,自然散落几棵树。大运河上的步行双桥,民国的房子,草地,树这些建筑和自然的景观成为一个重要的空间节点,形成特有的场所记忆。
模数
“Modulus”
_

我们取4.2m的方格网作为模数,每个模块单独的面积17.6㎡,可以满足办公管理卫生间等基本空间。


◎建构模拟

◎功能分区
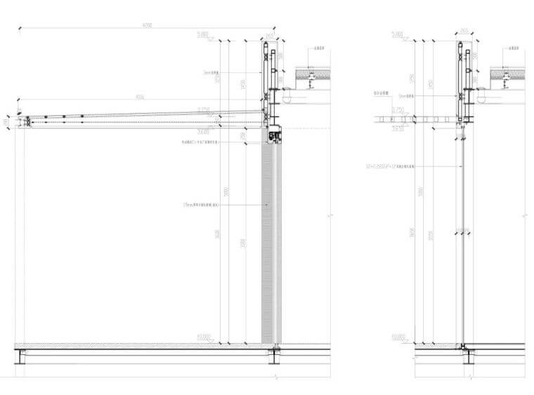
为了保证每根横纵梁的高度一致,建筑高度也采用了4.2m高。每个平面网格变成了一个个立体的模块。每个模块被拆解成三类构件:结构构件(梁和柱)、 维护构件(门、窗、外墙板)、底板和屋顶。


◎装配构件
所有的梁柱的交接均采用螺栓连接的方式便于安装和拆卸。景观场地和装置的布置延续建筑4.2m*4.2m的模数,与建筑的立面和平面取得统一。

渗透
“ Penetration”
_

◎体块生成分析
基地内有一棵树,生活馆采用L形态朝向树打开,与两个展示体块围合出院落,院与树成为了建筑的视觉中心,整个参观动线围绕着院子展开。洽谈区作为动线的终点面向大运河展开。


洽谈区共九个模块,我们朝向河面方向推出一个模块,面向运河形成一个凸出的三面临空的盒子作为茶室。抽离的盒子在洽谈区中心留下一个庭院,洽谈区围绕庭院形成内外被自然包裹的流动空间。
主展示空间与洽谈区之间增加一个庭院从而保证所有的模块都能直面景观,实现内与外的相互渗透。


透明
“ Transparent”
_
柯林罗把透明性分为物理的透明和现象学的透明。底层架空的盒子、透明的维护结构,纤细的白色柱子是物理层面的透明。


建筑在场地中,以一个盒子的体量呈现,保持着一种临近“无”的状态,展示空间外环绕灰空间的廊架,在建筑与环境间形成了一层过渡,无限延展直至虚空,一方面建筑内部空间具有溢出建筑边界的迹象,另外一方面,建筑外部的自然又通过玻璃墙渗透成为内部空间的一部分,建筑被视作水平向内与外之间相互透叠的部分。
底层架空的盒子可以看做天地之间的空间,建筑中两个中庭可以看做大地向天空延伸,建筑主体又被视为垂直向大地与天空相互透叠的部分,建筑在空间上实现了现象学的透明。

透明性不仅仅是空间上的,也是体验上的,作为展览建筑,没有单一动线的设定,使用者在不同的位置可以随意穿梭在内外之间。人们可以自由的通过在建筑中游走、触摸它或建立身体上的联系来感知建筑的组织方式,实现体验上的透明性。

模糊
“ Fuzzy”
_


建筑和景观共用一套网格体系,渐变的景观方格作为第三重的空间的过渡,弱化了灰空间和基地之间的联系。模糊了内和外的边界,边界的模糊实现空间的交融。使用者游走在内和外之间,得到不同空间感受。
建筑在空间、光线、透明度之间建立了一种微妙的关系,人、建筑、活动与环境共同构成了一个丰富的场景。

室内
“ Indoor ”
_
室内空间在延续建筑模数的基础上,着重强调流动空间的特点,采用与建筑立面呼应的现代风格。建筑内庭空间的自然引入,体验四季更替和静谧生活。


四周由玻璃环绕,营造一种极致的通透。仿佛一颗漂浮在森林中的魅力晶体,给人一种梦幻般的想象,同时增加空间色彩的丰富度。

建造
“Construction”
_

设计思考跨越框架结构体内部的力学问题,直接关注结构体之间的连接方式与空间组合。同一框架体又因为空间属性变化生成多种不同的空间形式,因此建筑最终所呈现的建造逻辑是不同的单元框架体组合拼接。
室内中庭空间的立柱从内部暴露了结构体单元的框架,重复出现且结构均匀的构件,揭示了整体和单元的关系。单元框架体的特性由此显现,可分解、重组、反复利用、便于运输。

再生
“ Rebirth”
_


建筑所在的场所本身是一片再生之地。原本衰败的地区,通过改造和整饬后形成了一片汇聚了城市活力的文创中心。通过建筑的改造和空间重塑,旧有的场所获得了新的生命,场地的活力得以再次激发。

建筑从设计之初便被赋予了装配和可拆卸的特性,由此建筑便拥有了生命。电影《终结者2》中,反派的液态金属人从地上慢慢生成的画面给了再生建筑一个很好的诠释。
流动的液态金属与流动的空间对比是再生最好的注解。空间流动,可以适应不同的场地,形态透明,可以与各种不同的环境融合。

一段路 一片草 一条廊 一汪水 一棵树 一幢房,组成了大运河畔一处诗意的栖居之地。不久之后,这些会消失,一切重归自然,同样的场景会在其他的地方再现。


我听见音乐
来自月光和胴体
辅极端的诱饵捕获飘渺的唯美
一生充盈着激烈,又充盈着纯然
总有回忆贯穿于世间
技术图纸
_

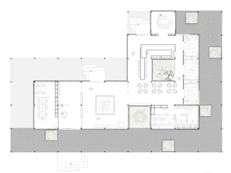
◎一层平面图

◎屋顶平面图

◎东立面图

◎西立面图

◎北立面图

◎南立面图

◎节点图
工程档案
项目名称 | 自在春晓
项目位置 | 苏州虎丘区浒墅关
业主单位 | 金地集团
设计单位 | 上海日清建筑设计有限公司
项目总负责 | 任治国
设计团队 | 石登科 章卓 罗雅馨 刘影 杜怡心
景观设计 | 上海水石景观环境设计有限公司
室内设计 | 赛拉维室内装饰设计(天津)有限公司
幕墙设计 | 中衡设计集团股份有限公司
灯光设计 | 苏州尚明堂照明设计有限公司
机电设计 | 江苏浩森建筑设计有限公司
建筑摄影 | 山间摄影
室内摄影 | 一千度视觉
建筑面积 | 350m²
设计时间 | 2020年4月
竣工时间 | 2020年9月
来源网络,内容仅做学习分享,如有侵权请联系删除。
本文为专题文章,来自:慧星,内容观点不代表本站立场,如若转载请联系专题作者,本文链接:https://fgeyun.com/2020/12/5880.html
